1 - 5410 Murray Cres, Burlington.jpg
Felisi&Co logo with white cursive text on black background and smaller text reading 'Real Estate Team'.

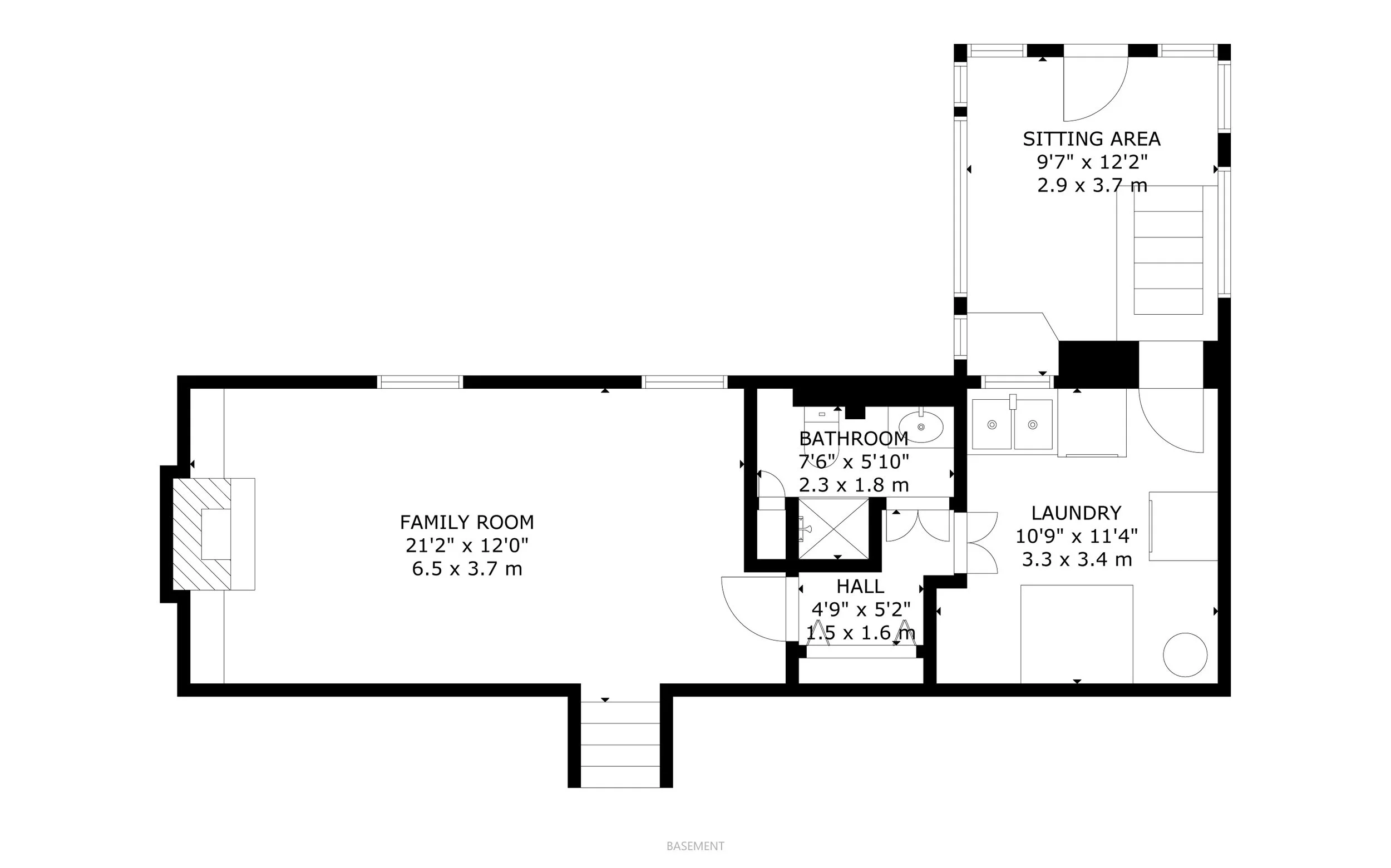
5410 Murray Cres, Burlington

Virtual tour

Photo Gallery

 Property Preview

 Location

 
White cursive text says 'Felisi & Co.' with smaller uppercase text underneath that reads 'REALT ESTATE TEAM' on a black background.

Contact Us!

RE/MAX Escarpment Realty Inc., Brokerage logo with bold black and white text.

Phone: (905) 320-8828
Email: kelsi@kelsiandco.ca

502 Brant St, Burlington, ON
Monday-Friday 9am-9pm

Group of five diverse young adults, four women and one man, posing in a modern living room with a gray wall, decorative black fireplace, greenery, and a cream chair.